Moderner Neubau in Kettenis: Nachhaltig leben im Grenzgebiet – Design trifft Effizienz in Kettenis
- Beschreibung:
- Inmitten des beliebten Eupener Ortsteils Kettenis, in zweiter Reihe zur Aachener Straße und erschlossen u?ber einen privaten Zufahrtsweg, entsteht auf einem 587 m² großen Grundstu?ck dieser moderne und nachhaltige Neubau in Holz-Beton-Hybridbauweise.
Das geplante Einfamilienhaus bietet ca. 167,5 m² Wohnfläche verteilt auf zwei Etagen. Eine großzu?gige Dachterrasse sowie eine kombinierte Garage/Lagerfläche mit ca. 35 m² runden das durchdachte Konzept ab. (Garage nicht in Wohnfläche enthalten)
Im Erdgeschoss empfängt Sie ein einladender Eingangsbereich, an den sich das erste Badezimmer und ein Hauswirtschaftsraum anschließen. Das Herzstu?ck bildet der offen gestaltete Wohn- und Essbereich mit rund 50 m², der durch bodentiefe Fensterflächen viel Licht und ein luftiges Raumgefu?hl bietet. Direkt angeschlossen ist die geräumige Garage mit zwei Toren à 2,5 m Breite, die vielseitig nutzbar ist – ideal fu?r Handwerksbetriebe, Garage oder als Lagerfläche.
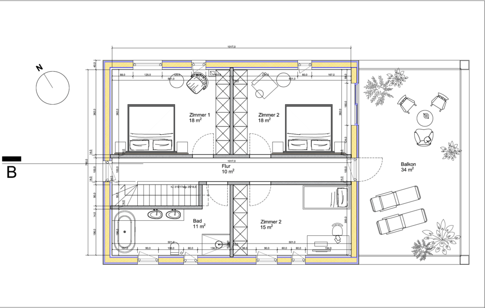
Im Obergeschoss erwarten Sie drei Schlafzimmer sowie ein weiteres, voll ausgestattetes Badezimmer. Ein besonderes Highlight: die u?berdachte Dachterrasse mit rund 35 m², perfekt fu?r laue Sommerabende und gesellige Stunden im Freien.
Im Rahmen des Innenausbaus sowie der Grundrissgestaltung besteht – je nach Baufortschritt – Mitspracherecht fu?r den Käufer. Materialien wie Parkett, Fliesen und Sanitärausstattung können in einem definierten Rahmen frei gewählt werden, um dem neuen Zuhause eine individuelle Handschrift zu verleihen.
Haben wir Ihr Interesse geweckt?
Kontaktieren Sie uns gerne fu?r weitere Informationen, Grundrisse oder einen persönlichen Beratungstermin vor Ort! - Lage:
- Die Neubauimmobilie an der Aachener Straße 311 B liegt im charmanten Ortsteil Kettenis der Stadt Eupen – mitten im Herzen der Deutschsprachigen Gemeinschaft Belgiens. Diese Lage besticht durch ihre strategische Position an der Grenze zu Deutschland, nur wenige Fahrminuten von Aachen entfernt. Die gute Anbindung u?ber die E40 und die Nähe zu Städten wie Lu?ttich, Maastricht und Aachen machen die Region besonders attraktiv fu?r Pendler und grenzu?berschreitend Arbeitende.
Kettenis selbst bietet eine ausgewogene Mischung aus ländlicher Ruhe und urbaner Nähe. Familien schätzen die hohe Lebensqualität, die zahlreichen Kindergärten und Schulen sowie das sichere, nachbarschaftliche Umfeld. Einkaufsmöglichkeiten, Ärzte, Apotheken und Gastronomie befinden sich im direkten Umfeld oder im nahegelegenen Eupen-Zentrum. Naturfreunde profitieren von den weitläufigen Wiesen, Wäldern und Spazierwegen, während Sport- und Kulturangebote ebenfalls nicht zu kurz kommen.
Die Aachener Straße zählt zu den Hauptachsen der Region, doch das Objekt liegt weit zuru?ckversetzt (ca. 45 Meter) im verkehrsberuhigten Abschnitt – mit einer durchdachten Erschließung und angenehmer Privatsphäre. Wer naturnahes Wohnen mit grenznaher Erreichbarkeit und moderner Infrastruktur verbinden möchte, trifft hier eine hervorragende Wahl. - Ausstattung:
- Der Baubeginn des Projekts ist fu?r August 2025 vorgesehen, die Fertigstellung ist fu?r Ende 2026 bzw. Anfang 2027 geplant.
Das Einfamilienhaus wird nach dem neuesten energetischen Standard errichtet – mit Fokus auf nachhaltige Bauweise, hoher Energieeffizienz und langfristiger Werthaltigkeit. Die Holz-Beton-Hybridkonstruktion kombiniert die ökologische Stärke des natu?rlichen Baustoffs Holz mit der strukturellen Robustheit von Beton – ideal fu?r modernes, nachhaltiges Wohnen.
Beheizt wird das Gebäude u?ber eine leistungsstarke Luftwärmepumpe in Verbindung mit einer komfortablen Fußbodenheizung im gesamten Wohnraum. Ergänzend wird eine Photovoltaikanlage mit bis zu 10 kWp Leistung installiert, was die energetische Selbstversorgung weiter optimiert und die laufenden Betriebskosten deutlich reduziert.
Fu?r ein hervorragendes Raumklima sorgen dreifach verglaste Fenster mit sehr guten Dämmwerten, die zugleich Schallschutz bieten. Der voraussichtliche Energieausweis wird mindestens die Energieklasse A erreichen – ein starkes Argument fu?r alle, die in die Zukunft investieren möchten.
